

三鷹市井口5丁目
建築条件付売地













| デイリーヤマザキ三鷹井口4丁目店 | 約260m(徒歩4分) |
| グルメシティ武蔵境店 | 約640m(徒歩8分) |
| 境南中央公園 | 約100m(徒歩2分) |
| 武蔵野境南郵便局 | 約380m(徒歩5分) |
| ごとう内科、循環器クリニック | 約600m(徒歩7分) |
| グリーン歯科 | 約250m(徒歩3分) |
| みそら幼稚園 | 約560m(徒歩7分) |
| チャイルドホーム武蔵境園 | 約260m(徒歩3分) |
| 三鷹市立井口小学校 | 約1200m(徒歩15分) |
| 三鷹市立井口中学校 | 約1600m(徒歩20分) |
| 物件名 | 三鷹市井口5丁目 【建築条件付売地】 | ||
|---|---|---|---|
| 所在地 | 三鷹市井口5丁目 | ||
| 交通 | JR 中央線「武蔵境」駅徒歩13 分 「東小金井」駅徒歩13分 |
||
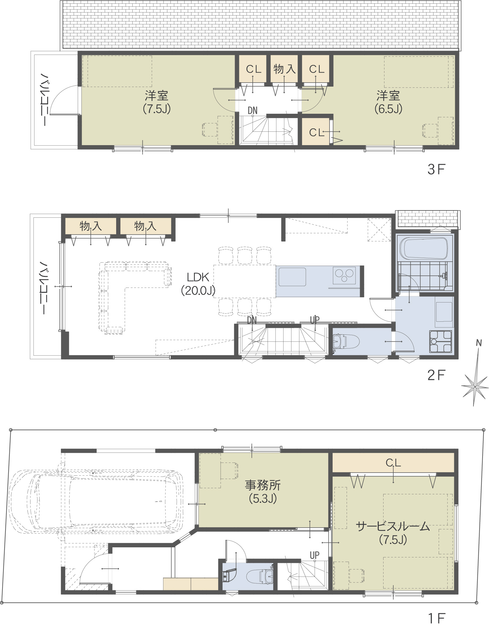
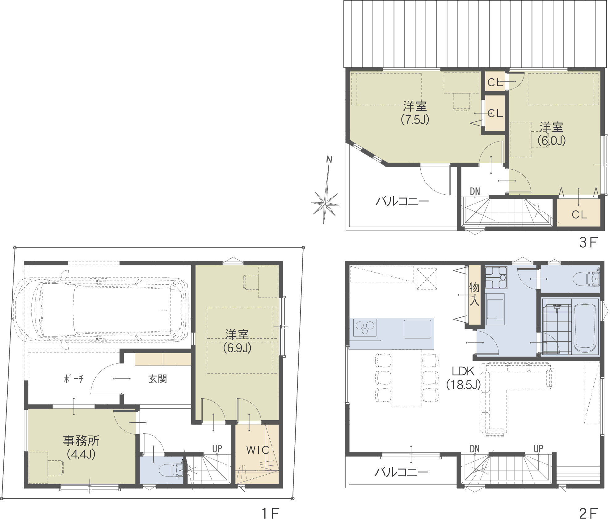
| 販売価格 | A区画5,480万円 B区画5,180万円 |
土地面積 | A区画68.52㎡ B区画59.20㎡ |
| 地目 | 宅地 | 土地権利 | 所有権 |
| 接道状況 | 西側約4.5m~約5.0m公道 | 私道 | - |
| 用途地域 | 近隣商業地域・第一種低層住居専用地域 | 建ぺい率/容積率 | 80%(40%)/200%(80%) |
| 高度地区 | 第1種高度地区、2種高度地区 | 設備 | 公営水道・本下水・都市ガス・東京電力 |
| 総区画数/販売区画数 | 3区画/2区画 | 防火指定 | 準防火地域 |
| その他 | 現況 | 既存建物有(更地渡し) |
|
| 引渡 | 令和7年11月下旬 |
取引態様 | 売主 |
| 備考 | |||