新築一戸建

調布市深大寺東町6丁目 新築分譲住宅 2号棟

外とのつながりを感じられる1階LDKは、小さなお子さまやご高齢の方にも安心な住まい。生活の中心がフラットにまとまり、暮らしやすさを実感いただけます。アムティックまで(令和7年11月10日撮影)

外とのつながりを感じられる1階LDKは、小さなお子さまやご高齢の方にも安心な住まい。生活の中心がフラットにまとまり、暮らしやすさを実感いただけます。アムティックまで(令和7年11月10日撮影)

キッチンは半独立しており、匂いや煙を抑えられます♪壁付けタイプのキッチンは、LDを広く使えるのが魅力。空間を効率的に活用でき、家具の配置もしやすいレイアウトです♪♪(令和7年11月10日撮影)

キッチンは半独立しており、匂いや煙を抑えられます♪壁付けタイプのキッチンは、LDを広く使えるのが魅力。空間を効率的に活用でき、家具の配置もしやすいレイアウトです♪♪(令和7年11月10日撮影)

豊かな緑が雑音を消してくれるよう。眺めて景色よく、住んで静かな環境♪南向きの明るい室内。どの空間にも光を届けるリズミカルで優雅な室内を創出しています♪詳細はアムティックまで(令和7年11月10日撮影)

豊かな緑が雑音を消してくれるよう。眺めて景色よく、住んで静かな環境♪南向きの明るい室内。どの空間にも光を届けるリズミカルで優雅な室内を創出しています♪詳細はアムティックまで(令和7年11月10日撮影)

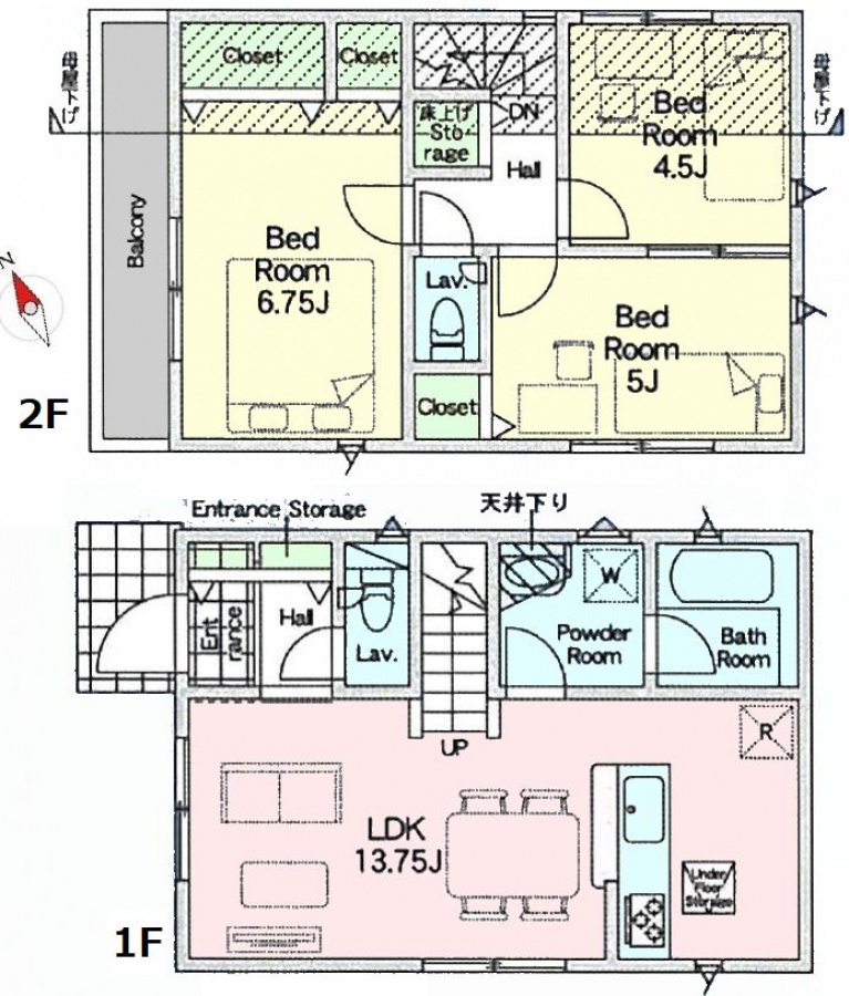
間取り図

間取り図

外とのつながりを感じられる1階LDKは、小さなお子さまやご高齢の方にも安心な住まい。生活の中心がフラットにまとまり、暮らしやすさを実感いただけます。アムティックまで(令和7年11月10日撮影)

外とのつながりを感じられる1階LDKは、小さなお子さまやご高齢の方にも安心な住まい。生活の中心がフラットにまとまり、暮らしやすさを実感いただけます。アムティックまで(令和7年11月10日撮影)

外とのつながりを感じられる1階LDKは、小さなお子さまやご高齢の方にも安心な住まい。生活の中心がフラットにまとまり、暮らしやすさを実感いただけます。アムティックまで(令和7年11月10日撮影)

外とのつながりを感じられる1階LDKは、小さなお子さまやご高齢の方にも安心な住まい。生活の中心がフラットにまとまり、暮らしやすさを実感いただけます。アムティックまで(令和7年11月10日撮影)

広々とした1坪タイプのバスルームは、ご家族での利用にも十分なゆとり。浴室暖房換気乾燥機付きで、一年を通して快適なバスタイムをお楽しみいただけます。アムティックまで♪(令和7年11月10日撮影)

広々とした1坪タイプのバスルームは、ご家族での利用にも十分なゆとり。浴室暖房換気乾燥機付きで、一年を通して快適なバスタイムをお楽しみいただけます。アムティックまで♪(令和7年11月10日撮影)

光と風が心地よく通り抜ける全室2面採光の洋室は、居心地の良さが魅力。収納スペースも確保されているので、家具の配置にもゆとりが生まれます。お気軽にアムティックまで♪♪(令和7年11月10日撮影)

光と風が心地よく通り抜ける全室2面採光の洋室は、居心地の良さが魅力。収納スペースも確保されているので、家具の配置にもゆとりが生まれます。お気軽にアムティックまで♪♪(令和7年11月10日撮影)

光と風が心地よく通り抜ける全室2面採光の洋室は、居心地の良さが魅力。収納スペースも確保されているので、家具の配置にもゆとりが生まれます。お気軽にアムティックまで♪♪(令和7年11月10日撮影)

光と風が心地よく通り抜ける全室2面採光の洋室は、居心地の良さが魅力。収納スペースも確保されているので、家具の配置にもゆとりが生まれます。お気軽にアムティックまで♪♪(令和7年11月10日撮影)

光と風が心地よく通り抜ける全室2面採光の洋室は、居心地の良さが魅力。収納スペースも確保されているので、家具の配置にもゆとりが生まれます。お気軽にアムティックまで♪♪(令和7年11月10日撮影)

光と風が心地よく通り抜ける全室2面採光の洋室は、居心地の良さが魅力。収納スペースも確保されているので、家具の配置にもゆとりが生まれます。お気軽にアムティックまで♪♪(令和7年11月10日撮影)

鏡裏に収納スペースを備えた3面鏡タイプの洗面化粧台。整髪料やスキンケア用品などをスッキリとしまえて、機能性と美しさを兼ね備えた設計です。お気軽にアムティック吉祥寺本社までお問い合わせください♪

鏡裏に収納スペースを備えた3面鏡タイプの洗面化粧台。整髪料やスキンケア用品などをスッキリとしまえて、機能性と美しさを兼ね備えた設計です。お気軽にアムティック吉祥寺本社までお問い合わせください♪

あると嬉しいシャワートイレは、日々の暮らしの質をさりげなく高めてくれる人気の設備。お手入れも簡単で、いつでも快適にお使いいただけます。物件の詳細は、お気軽にアムティックまで(令和7年11月10日撮影)

あると嬉しいシャワートイレは、日々の暮らしの質をさりげなく高めてくれる人気の設備。お手入れも簡単で、いつでも快適にお使いいただけます。物件の詳細は、お気軽にアムティックまで(令和7年11月10日撮影)

幅広設計のバルコニーは、洗濯物を干すスペースもゆったり確保でき、日常使いにも便利。視界が抜けた眺望と心地よい風が、暮らしにゆとりをもたらします。アムティックまで♪(令和7年11月10日撮影)

幅広設計のバルコニーは、洗濯物を干すスペースもゆったり確保でき、日常使いにも便利。視界が抜けた眺望と心地よい風が、暮らしにゆとりをもたらします。アムティックまで♪(令和7年11月10日撮影)

幅広設計のバルコニーは、洗濯物を干すスペースもゆったり確保でき、日常使いにも便利。視界が抜けた眺望と心地よい風が、暮らしにゆとりをもたらします。アムティックまで♪(令和7年11月10日撮影)

幅広設計のバルコニーは、洗濯物を干すスペースもゆったり確保でき、日常使いにも便利。視界が抜けた眺望と心地よい風が、暮らしにゆとりをもたらします。アムティックまで♪(令和7年11月10日撮影)

明るく清潔感のある玄関は、帰宅時にも気持ちよく迎えてくれる空間。収納力もしっかり確保されているため、ご家族の靴や外出用品もすっきり収納可能。お気軽にアムティックまで(令和7年11月10日撮影)

明るく清潔感のある玄関は、帰宅時にも気持ちよく迎えてくれる空間。収納力もしっかり確保されているため、ご家族の靴や外出用品もすっきり収納可能。お気軽にアムティックまで(令和7年11月10日撮影)

豊かな緑が雑音を消してくれるよう。眺めて景色よく、住んで静かな環境♪南向きの明るい室内。どの空間にも光を届けるリズミカルで優雅な室内を創出しています♪詳細はアムティックまで(令和7年11月10日撮影)

豊かな緑が雑音を消してくれるよう。眺めて景色よく、住んで静かな環境♪南向きの明るい室内。どの空間にも光を届けるリズミカルで優雅な室内を創出しています♪詳細はアムティックまで(令和7年11月10日撮影)

豊かな緑が雑音を消してくれるよう。眺めて景色よく、住んで静かな環境♪南向きの明るい室内。どの空間にも光を届けるリズミカルで優雅な室内を創出しています♪詳細はアムティックまで(令和7年11月10日撮影)

豊かな緑が雑音を消してくれるよう。眺めて景色よく、住んで静かな環境♪南向きの明るい室内。どの空間にも光を届けるリズミカルで優雅な室内を創出しています♪詳細はアムティックまで(令和7年11月10日撮影)

豊かな緑が雑音を消してくれるよう。眺めて景色よく、住んで静かな環境♪南向きの明るい室内。どの空間にも光を届けるリズミカルで優雅な室内を創出しています♪詳細はアムティックまで(令和7年11月10日撮影)

豊かな緑が雑音を消してくれるよう。眺めて景色よく、住んで静かな環境♪南向きの明るい室内。どの空間にも光を届けるリズミカルで優雅な室内を創出しています♪詳細はアムティックまで(令和7年11月10日撮影)

豊かな緑が雑音を消してくれるよう。眺めて景色よく、住んで静かな環境♪南向きの明るい室内。どの空間にも光を届けるリズミカルで優雅な室内を創出しています♪詳細はアムティックまで(令和7年11月10日撮影)

豊かな緑が雑音を消してくれるよう。眺めて景色よく、住んで静かな環境♪南向きの明るい室内。どの空間にも光を届けるリズミカルで優雅な室内を創出しています♪詳細はアムティックまで(令和7年11月10日撮影)

区画図(対象不動産は2号棟です)

区画図(対象不動産は2号棟です)

外とのつながりを感じられる1階LDKは、小さなお子さまやご高齢の方にも安心な住まい。生活の中心がフラットにまとまり、暮らしやすさを実感いただけます。アムティックまで(令和7年11月10日撮影)キッチンは半独立しており、匂いや煙を抑えられます♪壁付けタイプのキッチンは、LDを広く使えるのが魅力。空間を効率的に活用でき、家具の配置もしやすいレイアウトです♪♪(令和7年11月10日撮影)豊かな緑が雑音を消してくれるよう。眺めて景色よく、住んで静かな環境♪南向きの明るい室内。どの空間にも光を届けるリズミカルで優雅な室内を創出しています♪詳細はアムティックまで(令和7年11月10日撮影)間取り図外とのつながりを感じられる1階LDKは、小さなお子さまやご高齢の方にも安心な住まい。生活の中心がフラットにまとまり、暮らしやすさを実感いただけます。アムティックまで(令和7年11月10日撮影)外とのつながりを感じられる1階LDKは、小さなお子さまやご高齢の方にも安心な住まい。生活の中心がフラットにまとまり、暮らしやすさを実感いただけます。アムティックまで(令和7年11月10日撮影)広々とした1坪タイプのバスルームは、ご家族での利用にも十分なゆとり。浴室暖房換気乾燥機付きで、一年を通して快適なバスタイムをお楽しみいただけます。アムティックまで♪(令和7年11月10日撮影)光と風が心地よく通り抜ける全室2面採光の洋室は、居心地の良さが魅力。収納スペースも確保されているので、家具の配置にもゆとりが生まれます。お気軽にアムティックまで♪♪(令和7年11月10日撮影)光と風が心地よく通り抜ける全室2面採光の洋室は、居心地の良さが魅力。収納スペースも確保されているので、家具の配置にもゆとりが生まれます。お気軽にアムティックまで♪♪(令和7年11月10日撮影)光と風が心地よく通り抜ける全室2面採光の洋室は、居心地の良さが魅力。収納スペースも確保されているので、家具の配置にもゆとりが生まれます。お気軽にアムティックまで♪♪(令和7年11月10日撮影)鏡裏に収納スペースを備えた3面鏡タイプの洗面化粧台。整髪料やスキンケア用品などをスッキリとしまえて、機能性と美しさを兼ね備えた設計です。お気軽にアムティック吉祥寺本社までお問い合わせください♪あると嬉しいシャワートイレは、日々の暮らしの質をさりげなく高めてくれる人気の設備。お手入れも簡単で、いつでも快適にお使いいただけます。物件の詳細は、お気軽にアムティックまで(令和7年11月10日撮影)幅広設計のバルコニーは、洗濯物を干すスペースもゆったり確保でき、日常使いにも便利。視界が抜けた眺望と心地よい風が、暮らしにゆとりをもたらします。アムティックまで♪(令和7年11月10日撮影)幅広設計のバルコニーは、洗濯物を干すスペースもゆったり確保でき、日常使いにも便利。視界が抜けた眺望と心地よい風が、暮らしにゆとりをもたらします。アムティックまで♪(令和7年11月10日撮影)明るく清潔感のある玄関は、帰宅時にも気持ちよく迎えてくれる空間。収納力もしっかり確保されているため、ご家族の靴や外出用品もすっきり収納可能。お気軽にアムティックまで(令和7年11月10日撮影)豊かな緑が雑音を消してくれるよう。眺めて景色よく、住んで静かな環境♪南向きの明るい室内。どの空間にも光を届けるリズミカルで優雅な室内を創出しています♪詳細はアムティックまで(令和7年11月10日撮影)豊かな緑が雑音を消してくれるよう。眺めて景色よく、住んで静かな環境♪南向きの明るい室内。どの空間にも光を届けるリズミカルで優雅な室内を創出しています♪詳細はアムティックまで(令和7年11月10日撮影)豊かな緑が雑音を消してくれるよう。眺めて景色よく、住んで静かな環境♪南向きの明るい室内。どの空間にも光を届けるリズミカルで優雅な室内を創出しています♪詳細はアムティックまで(令和7年11月10日撮影)豊かな緑が雑音を消してくれるよう。眺めて景色よく、住んで静かな環境♪南向きの明るい室内。どの空間にも光を届けるリズミカルで優雅な室内を創出しています♪詳細はアムティックまで(令和7年11月10日撮影)区画図(対象不動産は2号棟です)
Point
耐震等級3た断熱性能5などハイスペック住宅/中央特快停車駅「三鷹駅」/支払い例 11.8万円
リモート内覧開催中!
  • 4,690万円(税込)

  • 12.8万円/月

  • 東京都調布市深大寺東町6丁目
    JR中央線「三鷹」駅バス8分、京王線「調布」駅バス12分
  • 3LDK
    71.28㎡
ローンシミュレーション

(※元利均等方式 金利5.00%まで ※返済年数5~35年まで入力できます)
(※ボーナスは年2回で計算しています。1000万円まで入力できます)

しいの木公園

しいの木公園
約257m/4分

すわくぼ児童遊園

すわくぼ児童遊園
約316m/4分

うぃず調布深大寺保育園

うぃず調布深大寺保育園
約367m/5分

深大寺保育園

深大寺保育園
約710m/9分

フィッシャー幼稚園

フィッシャー幼稚園
約1379m/18分

調布市立北ノ台小学校

調布市立北ノ台小学校
約551m/7分

調布市立神代中学校

調布市立神代中学校
約2185m/28分

セブンイレブン野ヶ谷三鷹通り店

セブンイレブン野ヶ谷三鷹通り店
約297m/4分

ファミリーマート 三鷹消防大学通り店

ファミリーマート 三鷹消防大学通り店
約895m/12分

クリエイト 調布深大寺東町店

クリエイト 調布深大寺東町店
約683m/9分

デンキチ BRANCH調布 三鷹通り店

デンキチ BRANCH調布 三鷹通り店
約847m/11分

ドン・キホーテ 東八三鷹店

ドン・キホーテ 東八三鷹店
約1043m/14分

サミットストア三鷹市役所前店

サミットストア三鷹市役所前店
約1008m/13分

三鷹市役所

三鷹市役所
約1054m/14分

コーナンPRO三鷹東八店

コーナンPRO三鷹東八店
約1108m/14分

梅の湯

梅の湯
約182m/3分

市民深大寺テニスコート

市民深大寺テニスコート
約461m/6分

三鷹郵便局

三鷹郵便局
約1161m/15分

消防大学校

消防大学校
約758m/10分

調布市立図書館 深大寺分館

調布市立図書館 深大寺分館
約764m/10分

担当者よりComment

伊藤一輝 吉祥寺本社
伊藤一輝
ポイント・特徴

当日の見学もご対応可能です。その他「住所を知りたい」・「詳細資料が欲しい」・「こんな物件を紹介して欲しい」など、ご要望がございましたらお気軽にお問い合わせください。

お問い合わせ

アムティック株式会社
吉祥寺本社まで

0120-601-581

住所:〒180-0002
東京都武蔵野市吉祥寺東町1-19-21

営業時間:9:00~21:00

定休日:毎週火・水曜日 年末年始

アムティック株式会社 吉祥寺本社

【交通】
・JR中央線、総武線、東京メトロ東西線「三鷹駅」バス8分 停歩3分
~中央特快停車駅
~「新宿駅」最短15分直通

・京王線、相模原線「調布駅」バス12分 停歩3分
~特急停車駅
~渋谷行のバス有り

【POINT】
・1階に水回りを集中した「家事楽動線」
・動線が良く、お部屋がすっきり見える壁付けキッチン(1号棟)
・ご家族と会話を楽しみながら料理が出来る人気の対面キッチン(2号棟)

【駅の魅力】
・飲食店が充実した「アトレヴィ三鷹」や、ショッピングに便利な「三鷹コラル」などがありお買い物環境良好♪
また、駅からは動物園などがある広大な敷地の「井之頭恩賜公園」が徒歩圏内です♪
アムティック株式会社は、杉並・中野・世田谷エリアはもちろん、幅広いエリアの最新物件情報をお届け致します。
物件についてはもちろん、住宅ローンや税、また、エリアの耳より情報を熟知した専門スタッフにお気軽にご相談下さい。

【弊社提携金融機関】
三井住友銀行・三菱東京UFJ銀行・りそな銀行他、各都市銀行並びに、信託銀行と提携しております
【販売価格に対する融資限度の割合】
110%以内(諸経費についてもご相談下さい)
【年収に対する年間融資額の割合】
詳しく担当までお問い合わせ下さい
【返済期間】最大35年
【利率】
最大で年利0.595%(変動金利・通期優遇▲2.28%・保証料外枠の場合)
【その他】
中長期固定金利のキャンペーン商品などもございます。
・金利は2025年11月時点
・詳しくは担当者まで。

物件概要【新築一戸建】 物件番号:84115 情報更新日:2025年11月16日 次回更新予定日:2025年11月29日
物件名 調布市深大寺東町6丁目 新築分譲住宅 2号棟
所在地 東京都調布市深大寺東町6丁目
交通 JR中央線「三鷹」駅バス8分
京王線「調布」駅バス12分
間取り/詳細 3LDK
接道状況 一方(北西 公道 幅員4m )
価格 4,690万円(税込) 主要採光面
建物面積71.28㎡ 土地面積89.31㎡
種別/構造新築一戸建/木造 築年月2025年11月
階建2階建 地目
駐車場/月額料金空有 地勢平坦
傾斜地部分 路地状敷地
私道面積 セットバック
建ぺい率/容積率40%/80% 土地権利所有権
総棟数/販売棟数2棟/1棟 借地料/借地期間-/--
現況空家(完成済) その他法令上の制限
取引態様/引渡時期仲介/即時 建築確認番号
設備条件
  • 省エネ性能:★★★(削減率20%達成)
  • 断熱性能:5
  • システムキッチン
  • カウンターキッチン
  • 3口以上コンロ
  • 浴室1坪以上
  • 追焚機能
  • 浴室乾燥機
  • 全居室収納
  • 即入居可
  • 通風良好
  • 陽当り良好
  • 所有権
  • 低層住宅地
  • 低層マンション
  • 駐車場あり
  • 公営水道
  • 公共下水
  • 都市ガス
備考 ■■アムティックではきめ細やかなサービスで
お探しはじめのお客様でも安心のサポート体制を敷いております■■

お探しはじめのお客様は、ご不安やご不明点がたくさんあると思います
経験豊富なスタッフが、丁寧に一からサポートさせていただきます

■住宅ローンでご不安のお客様は・・
○ファイナンシャルプランナーによる、ライフプラン無料相談会開催
○弊社提携都市銀行との住宅ローン無料相談開催中
○ネット銀行との取次もお任せ下さい

■なかなか希望にあう物件がないのだけれども・・
○アムティックでは、杉並・世田谷・練馬エリアを中心に、東京都全域の物件をご紹介させて頂いております。
インターネットなどに掲載のできない未公開物件が多数ございます。お客様のご希望条件をなんでもお聞かせ下さい。経験豊富なスタッフがお客様に最適なご提案をさせて頂きます。

■小さなお子様や、お仕事がお忙しいお客様にも安心の無料送迎サービス
○お仕事帰りの夜間や、お仕事前の早朝などお仕事等でお忙しいお客様もお気軽にお申し付け下さい。専用車にてご指定のお時間・場所までお迎えに参ります。
○小さなお子様のいるお客様へはチャイルドシートを設置した専用車にて、ご自宅までお迎えに参ります。

■土地からお探しのお客様には、プラン作成や、提携工務店のご紹介サービス
○専属設計士によるプラン無料作成承ります。立地はいいけど、希望のプランが建てられるかな?とお悩みのお客様ご依頼お待ちいたしております
○ミサワホーム・イトーピアホームなどのハウスメーカー、地場に人気の工務店まで、お客様のイメージに併せてご紹介承ります。シンプルモダン、南欧風・自然素材の家等何でもご相談下さい。

物件お問い合わせ

要望任意
お名前必須
フリガナ必須
住所任意
メールアドレス必須
電話番号必須
希望連絡方法任意
ご希望・ご質問任意
プライバシーポリシーを必ずお読みください。左記内容に同意頂いた場合は、確認画面へお進み下さい。
Page Top