売地

調布市若葉町3丁目 建築条件付売地

専属設計士が手掛けるフリープラン対応住宅♪建築条件を外して、土地のみの販売も可能です♪お気軽にアムティックまでお問い合わせください。

専属設計士が手掛けるフリープラン対応住宅♪建築条件を外して、土地のみの販売も可能です♪お気軽にアムティックまでお問い合わせください。

区画図

区画図

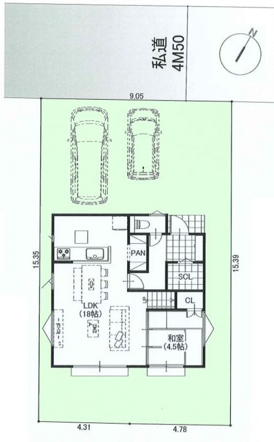
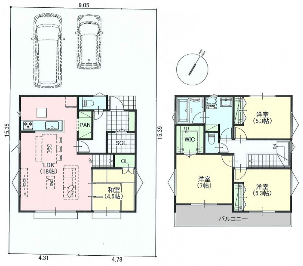
【参考プラン】 ・4LDK&パントリー&WIC&駐車場2台 ・建物面積 139.60m2 ・建物価格 1,500万円 ・土地建物総額 8,490万円(税込)

【参考プラン】 ・4LDK&パントリー&WIC&駐車場2台 ・建物面積 139.60m2 ・建物価格 1,500万円 ・土地建物総額 8,490万円(税込)

キレイな整形地の1区画♪周辺は街灯が整備されており、帰りが遅い時や、子育て世帯でも安心感があります♪小学校徒歩2分、中学校徒歩3分の子育て環境♪

キレイな整形地の1区画♪周辺は街灯が整備されており、帰りが遅い時や、子育て世帯でも安心感があります♪小学校徒歩2分、中学校徒歩3分の子育て環境♪

専属設計士が手掛けるフリープラン対応住宅♪建築条件を外して、土地のみの販売も可能です♪お気軽にアムティックまでお問い合わせください。

専属設計士が手掛けるフリープラン対応住宅♪建築条件を外して、土地のみの販売も可能です♪お気軽にアムティックまでお問い合わせください。

キレイな整形地の1区画♪周辺は街灯が整備されており、帰りが遅い時や、子育て世帯でも安心感があります♪小学校徒歩2分、中学校徒歩3分の子育て環境♪

キレイな整形地の1区画♪周辺は街灯が整備されており、帰りが遅い時や、子育て世帯でも安心感があります♪小学校徒歩2分、中学校徒歩3分の子育て環境♪

専属設計士が手掛けるフリープラン対応住宅♪建築条件を外して、土地のみの販売も可能です♪お気軽にアムティックまでお問い合わせください。

専属設計士が手掛けるフリープラン対応住宅♪建築条件を外して、土地のみの販売も可能です♪お気軽にアムティックまでお問い合わせください。

キレイな整形地の1区画♪周辺は街灯が整備されており、帰りが遅い時や、子育て世帯でも安心感があります♪小学校徒歩2分、中学校徒歩3分の子育て環境♪

キレイな整形地の1区画♪周辺は街灯が整備されており、帰りが遅い時や、子育て世帯でも安心感があります♪小学校徒歩2分、中学校徒歩3分の子育て環境♪

専属設計士が手掛けるフリープラン対応住宅♪建築条件を外して、土地のみの販売も可能です♪お気軽にアムティックまでお問い合わせください。

専属設計士が手掛けるフリープラン対応住宅♪建築条件を外して、土地のみの販売も可能です♪お気軽にアムティックまでお問い合わせください。

キレイな整形地の1区画♪周辺は街灯が整備されており、帰りが遅い時や、子育て世帯でも安心感があります♪小学校徒歩2分、中学校徒歩3分の子育て環境♪

キレイな整形地の1区画♪周辺は街灯が整備されており、帰りが遅い時や、子育て世帯でも安心感があります♪小学校徒歩2分、中学校徒歩3分の子育て環境♪

専属設計士が手掛けるフリープラン対応住宅♪建築条件を外して、土地のみの販売も可能です♪お気軽にアムティックまでお問い合わせください。区画図【参考プラン】 ・4LDK&パントリー&WIC&駐車場2台 ・建物面積 139.60m2 ・建物価格 1,500万円 ・土地建物総額 8,490万円(税込)キレイな整形地の1区画♪周辺は街灯が整備されており、帰りが遅い時や、子育て世帯でも安心感があります♪小学校徒歩2分、中学校徒歩3分の子育て環境♪専属設計士が手掛けるフリープラン対応住宅♪建築条件を外して、土地のみの販売も可能です♪お気軽にアムティックまでお問い合わせください。キレイな整形地の1区画♪周辺は街灯が整備されており、帰りが遅い時や、子育て世帯でも安心感があります♪小学校徒歩2分、中学校徒歩3分の子育て環境♪専属設計士が手掛けるフリープラン対応住宅♪建築条件を外して、土地のみの販売も可能です♪お気軽にアムティックまでお問い合わせください。キレイな整形地の1区画♪周辺は街灯が整備されており、帰りが遅い時や、子育て世帯でも安心感があります♪小学校徒歩2分、中学校徒歩3分の子育て環境♪専属設計士が手掛けるフリープラン対応住宅♪建築条件を外して、土地のみの販売も可能です♪お気軽にアムティックまでお問い合わせください。キレイな整形地の1区画♪周辺は街灯が整備されており、帰りが遅い時や、子育て世帯でも安心感があります♪小学校徒歩2分、中学校徒歩3分の子育て環境♪
Point
フリープラン対応住宅/参考プラン4LDK&パントリー&WIC&駐車場2台!
リモート内覧開催中!
  • 6,990万円

  • 19.1万円/月

  • 東京都調布市若葉町3丁目
    京王線「つつじヶ丘」駅徒歩13分、京王線「仙川」駅徒歩14分、京王線「柴崎」駅徒歩25分
  • 139.6㎡
ローンシミュレーション

(※元利均等方式 金利5.00%まで ※返済年数5~35年まで入力できます)
(※ボーナスは年2回で計算しています。1000万円まで入力できます)

調布市立若葉小学校

調布市立若葉小学校
約118m/2分

調布市立第四中学校

調布市立第四中学校
約114m/2分

調布市立 東部保育園

調布市立 東部保育園
約524m/7分

パイオニアキッズ つつじヶ丘園

パイオニアキッズ つつじヶ丘園
約769m/10分

調布たちばな幼稚園

調布たちばな幼稚園
約642m/9分

調布白菊幼稚園

調布白菊幼稚園
約660m/9分

東京都立神代高等学校

東京都立神代高等学校
約670m/9分

桐朋学園大学 仙川キャンパス

桐朋学園大学 仙川キャンパス
約628m/8分

ファミリーマート調布若葉町店

ファミリーマート調布若葉町店
約489m/7分

セブンイレブン 調布若葉町3丁目店

セブンイレブン 調布若葉町3丁目店
約606m/8分

ミニストップ調布東つつじケ丘店

ミニストップ調布東つつじケ丘店
約722m/10分

食品館あおば 仙川店

食品館あおば 仙川店
約815m/11分

クイーンズ伊勢丹

クイーンズ伊勢丹
約918m/12分

西友 仙川店

西友 仙川店
約1020m/13分

調布金子郵便局

調布金子郵便局
約872m/11分

クリエイト 調布つつじヶ丘駅前店

クリエイト 調布つつじヶ丘駅前店
約1079m/14分

京王リトナードつつじヶ丘

京王リトナードつつじヶ丘
約1090m/14分

島忠ホームズ仙川店

島忠ホームズ仙川店
約795m/10分

サンディ つつじヶ丘店

サンディ つつじヶ丘店
約812m/11分

実篤公園

実篤公園
約376m/5分

担当者よりComment

小島朱音 吉祥寺本社
小島朱音
ポイント・特徴

当日の見学もご対応可能です。その他「住所を知りたい」・「詳細資料が欲しい」・「こんな物件を紹介して欲しい」など、ご要望がございましたらお気軽にお問い合わせください。

お問い合わせ

アムティック株式会社
吉祥寺本社まで

0120-601-581

住所:〒180-0002
東京都武蔵野市吉祥寺東町1-19-21

営業時間:9:00~21:00

定休日:毎週火・水曜日 年末年始

アムティック株式会社 吉祥寺本社


【土地のみの販売も可能です♪お気軽にアムティックまでご相談ください♪】

【交通】
・京王線「つつじヶ丘駅」徒歩13分
~急行停車駅
~「新宿駅」まで最短17分直通
~平日ラッシュ時には各駅停車の始発有り

【専属設計士と創るフリープラン対応住宅】
・モデルハウスのご案内や建物プレゼンテーション承ります

【参考プラン】
・4LDK&パントリー&WIC&駐車場2台
・建物面積 139.60m2
・建物価格 1,500万円
・土地建物総額 8,490万円(税込)

【駅の魅力】
・駅前には、京王リトナードやキテラタウンなどの商業施設があり
お買い物やランチ、ディナーなどが楽しめる便利な住環境♪アムティック株式会社は、杉並・中野・世田谷エリアはもちろん、幅広いエリアの最新物件情報をお届け致します。
物件についてはもちろん、住宅ローンや税、また、エリアの耳より情報を熟知した専門スタッフにお気軽にご相談下さい。

【弊社提携金融機関】
三井住友銀行・三菱東京UFJ銀行・りそな銀行他、各都市銀行並びに、信託銀行と提携しております
【販売価格に対する融資限度の割合】
110%以内(諸経費についてもご相談下さい)
【年収に対する年間融資額の割合】
詳しく担当までお問い合わせ下さい
【返済期間】最大35年
【利率】
最大で年利0.67%(変動金利・通期優遇▲2.205%・保証料外枠の場合)
【その他】
中長期固定金利のキャンペーン商品などもございます。
・金利は2026年2月時点
・詳しくは担当者まで。

物件概要【売地】 物件番号:84314 情報更新日:2026年02月14日 次回更新予定日:2026年02月27日
物件名 調布市若葉町3丁目 建築条件付売地
所在地 東京都調布市若葉町3丁目
交通 京王線「つつじヶ丘」駅徒歩13分
京王線「仙川」駅徒歩14分
京王線「柴崎」駅徒歩25分
接道状況 一方(北西 間口9m 私道 幅員4m )
価格 6,990万円 私道面積-
土地権利所有権 土地面積139.6㎡
地目 地勢平坦
傾斜地部分 路地状敷地
建築条件 セットバック
都市計画市街化区域 用途地域第一種低層住居専用
建ぺい率40% 容積率80%
総区画数1区画 販売区画数1区画
国土法届出不要 その他法令上の制限
取引態様仲介 現況
引渡時期即時 引渡条件更地渡し
最適用途 住宅用地
設備条件
  • 更地渡し
  • 陽当り良好
  • 所有権
  • 更地
  • 低層住宅地
  • 低層マンション
  • 公営水道
  • 公共下水
  • 都市ガス
備考 ■■アムティックではきめ細やかなサービスで
お探しはじめのお客様でも安心のサポート体制を敷いております■■

お探しはじめのお客様は、ご不安やご不明点がたくさんあると思います
経験豊富なスタッフが、丁寧に一からサポートさせていただきます

■住宅ローンでご不安のお客様は・・
○ファイナンシャルプランナーによる、ライフプラン無料相談会開催
○弊社提携都市銀行との住宅ローン無料相談開催中
○ネット銀行との取次もお任せ下さい

■なかなか希望にあう物件がないのだけれども・・
○アムティックでは、杉並・世田谷・練馬エリアを中心に、東京都全域の物件をご紹介させて頂いております。
インターネットなどに掲載のできない未公開物件が多数ございます。お客様のご希望条件をなんでもお聞かせ下さい。経験豊富なスタッフがお客様に最適なご提案をさせて頂きます。

■小さなお子様や、お仕事がお忙しいお客様にも安心の無料送迎サービス
○お仕事帰りの夜間や、お仕事前の早朝などお仕事等でお忙しいお客様もお気軽にお申し付け下さい。専用車にてご指定のお時間・場所までお迎えに参ります。
○小さなお子様のいるお客様へはチャイルドシートを設置した専用車にて、ご自宅までお迎えに参ります。

■土地からお探しのお客様には、プラン作成や、提携工務店のご紹介サービス
○専属設計士によるプラン無料作成承ります。立地はいいけど、希望のプランが建てられるかな?とお悩みのお客様ご依頼お待ちいたしております
○ミサワホーム・イトーピアホームなどのハウスメーカー、地場に人気の工務店まで、お客様のイメージに併せてご紹介承ります。シンプルモダン、南欧風・自然素材の家等何でもご相談下さい。

物件お問い合わせ

要望任意
お名前必須
フリガナ必須
住所任意
メールアドレス必須
電話番号必須
希望連絡方法任意
ご希望・ご質問任意
プライバシーポリシーを必ずお読みください。左記内容に同意頂いた場合は、確認画面へお進み下さい。
Page Top